Denne lokalplan udlægger areal til anvendelse for ca. 90 tæt-lav boliger, fordelt på 4 boligklynger, samt 7 åben-lav boliger i den sydlige del af området, som afslutning på udstykningen lige syd for lokalplanområdet. området ligger nord for den eksisterende by i Ullerslev og øst for Kertemindevej. Planens hovedformål er at muliggøre opførelse af tæt-lav og i mindre grad åben-lav boliger i sammenhæng med den eksisterende by.
Disponering
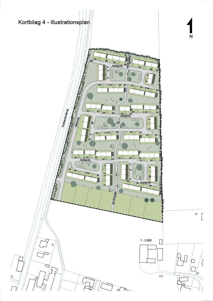
Området disponeres med 4 boligklynger med plads til i alt ca. 90 tæt-lav boliger, samt en række parcelhuse med plads til 7 boliger i områdets sydlige del.
Boligklyngerne bindes sammen af grønne kiler, hvor regnvand kan nedsive, så vidt muligt.
Boligklyngerne omkranser lokale fælles friarealer/gårdrum, der kan indrettes til ophold og aktivitet, f.eks. legeområder mv.
En hovedsti løber gennem området og skaber god sammenhæng for cyklister og fodgængere mellem boligområdet og byen. Desuden forbinder hovedstien byen med naturområdet mod nord.
Der skabes en samlet vejadgang til boligområdet i sammenhæng med den første etape syd for planområdet fra Kertemindevej.
Planen opdeler området i 2 delområder. Delområde I udlægges til boliger i form af tæt-lav bebyggelse (rækkehuse). Delområde II udlægges til boliger i form af åben-lav bebyggelse (parcelhuse).

Figur 7: Illustrationsplan for byudviklingens til boligformål nord for Ullerslev, i forlængelse af de udlagte parcelhusgrunde lige syd for planområdet.

Figur 7: Illustrationsplan for byudviklingens til boligformål nord for Ullerslev, i forlængelse af de udlagte parcelhusgrunde lige syd for planområdet.
Bebyggelse
Planen fastlægger bestemmelser om at det samlede etageareal for bebyggelse ikke må overstige hhv. 40 % af grundens areal for delområde I som helhed, og hhv. 30 % af grundens areal for den enkelte parcelhusgrund i delområde II.
Der må maksimalt ske befæstelse på 45 procent af grundens areal – for delområde I gælder det for den enkelte boliggrund inkl. andel af fælles friareal og for delområde II gælder det for den enkelte parcelhusgrund. Det gælder alle former for befæstelse så som boligbebyggelse, skure, terrasser, flisebelægning, veje mv. Formålet er at sikre, at der fortsat er store arealer, hvor der kan ske naturlig nedsivning af regnvand, så grundvandsdannelsen ikke forhindres.
Det vil være muligt at opføre boliger i op til 2 etager og i en højde på maksimalt 8,5 m.
Parcelhusenes facader mod boligvejene skal placeres inden for samme afstand fra vejen (delområde II). Det sker for at give en ensartet facadelinje, der bidrager til at skabe et veldefineret gaderum med en sammenhængende karakter i området. Det skal være med til at skabe et hyggeligt, attraktivt kvarter, hvor boligerne ligger forholdsvist ens på grundene, men kan variere i arkitektonisk udtryk, materialer og højde. Med planens krav om en afstand til vejskel på 4,5 til 6 meter, sikres dette.
Lokalplanen lægger op til variation i området gennem materialevalg, beklædning og farveudtryk. Facaderne på både parcelhusene og rækkehusene skal fremstå som enten blank mur i tegl, som vandskuret/pudset mur eller i træ. Tage skal udføres i tagsten, træ eller med beplantning som grønne tage. Lokalplanen indeholder også bestemmelser om at sekundære bygninger kun må udføres i teglmur, træ, skifer, eternit, cementfiber og metal der ikke reflekterer lys. Malede overflader skal fremstå i farver inden for jordfarveskalaen, som fremgår af lokalplanens bilag 5.
Hver af rækkehusklyngerne skal gives sin egen karakter, så bebyggelsen inden for hver klynge fremstår ensartet, men dog forskellig fra de andre klynger. Det kan f.eks. ske gennem valg af materialer, farver, tagform, facadeudformning mv. samt valg af beplantning i de fælles friarealer.
Friarealer
Der udlægges arealer til grønne kiler mellem boligklyngerne. Disse arealer udlægges dels for at skabe afstand mellem boligklyngerne, dels for at give mulighed for nedsivning af regnvand i det omfang, det er muligt og dels for at give boligområdet et grønt præg med varieret beplantning. Det er hensigten at de grønne kiler etableres med en vild engbevoksning evt. med buskbeplantning og enkeltstående træer, der kan bidragepositivt til biodiversiteten i området.

Figur 3: Grøn kile mellem boligerne. Det grønne område ligger som naturareal med spredt beplantning. Det er ikke
hensigten at det skal fremstå pænt og nydeligt velplejet, men som et område, hvor planter og insekter kan sprede sig. Formålet med den grønne kile er både at skabe sammenhængende grønne omgivelser for boligområdet og skabe gode muligheder for naturlig nedsivning af regnvand.

Figur 3: Grøn kile mellem boligerne. Det grønne område ligger som naturareal med spredt beplantning. Det er ikke
hensigten at det skal fremstå pænt og nydeligt velplejet, men som et område, hvor planter og insekter kan sprede sig. Formålet med den grønne kile er både at skabe sammenhængende grønne omgivelser for boligområdet og skabe gode muligheder for naturlig nedsivning af regnvand.
Midt i hver boligklynge udlægges et fælles grønt friareal med mulighed for etablering af opholdsmuligheder, lege- og aktivitetsområder mv. Disse friarealer kan få en mere styret karakter med klippet græs, bærbuske og frugttræer, der giver en mere havepræget karakter.

Figur 4: Eksempel på areal til opsamling af regnvand i forbindelse med større regnmængder, der det meste af året kan bruges som fodboldbane. Østerbro, Odense.

Figur 4: Eksempel på areal til opsamling af regnvand i forbindelse med større regnmængder, der det meste af året kan bruges som fodboldbane. Østerbro, Odense.
Det fælles grønne friareal i boligklyngerne kan gives hver sin karakter, både i indhold, udformning og beplantning.
Planen giver en fleksibilitet, der muliggør forskellige størrelser og karakter af private udearealer til rækkehusene. Til nogle af husene kan der afgrænses traditionelle private haver med plænegræs og afgrænsende hække. Til andre af husene er der mulighed for at etablere en privat terrasse og lade den grønne kile grænse helt op til terrassen. Derved får man en grøn herlighedsværdi uden at skulle passe sin egen private have. Disse muligheder bidrager til at skabe variation i udtrykket i boligområdet og samtidig appellere til forskellige beboertyper og dermed skabe en mangfoldig befolkningssammensætning i boligområdet.
Planen sikrer dog en mulig udstykning, hvor alle boliger kan få en grund på minimum 250 m2.
Mod det åbne land mod øst og nord samt mod Kertemindevej skal boligområdet skærmes af et beplantningsbælte. Mod Kertemindevej og mod nord vil der være tale om et nyt beplantningsbælte bestående af udvalgte egnstypiske og hjemmehørende arter. Mod øst afskærmes området i forvejen af et beskyttet dige med beplantning. Planen sikrer, at dette dige bevares, men også at det kan suppleres med ny beplantning så vidt det er muligt og hensigtsmæssigt inden for gældende regler og hensynet til digets naturværdi og kulturhistoriske værdi.
Vej, sti og parkering
Det nye boligområde får vejadgang fra Kertemindevej – dvs. området inden for nærværende lokalplan og området omfattet af lokalplan 319 får én samlet vejadgang.
Boligområdet betjenes via en stamvej, der ligger parallelt med Kertemindevej. Fra stamvejen etableres 3 boligveje i loops, der sikrer at f.eks. renovationsbiler og lignende ikke skal bakke på boligvejene. Boligerne får vejadgang fra boligvejene.
Vejene planlægges til lave hastigheder med max. 30 km/t. Der kan derfor laves hastighedsdæmpende foranstaltninger, som f.eks. hævede flader ved krydsninger. På den måde skabes et trafikalt trygt og sikkert område.

Figur 5: Eksempel på profiler for hhv. stiudlæg, stamvejen og boligvejene. Planen fastsætter at kørebanebredden for
vejudlæg skal være min. 5 m og max. 6 m.

Figur 5: Eksempel på profiler for hhv. stiudlæg, stamvejen og boligvejene. Planen fastsætter at kørebanebredden for
vejudlæg skal være min. 5 m og max. 6 m.
I lokalplanområdet er der allerede i dag etableret en dobbeltrettet cykelsti parallelt med Kertemindevej. Stien forbinder Flødstrup med Ullerslev, og fører skolebørn mod skole og idrætsfaciliteter syd for Odensevej. Der skabes tre stiforbindelser fra boligvejene til denne stiforbindelse.
Der planlægges en nord-syd gående hovedsti midt i boligområdet. Denne sti skal forbinde området på tværs for gående og cyklister. Stien placeres, så den løber gennem de grønne kiler og de fælles friarealer i boligklyngerne og får dermed et varieret forløb.
Hovedstien skal også skabe en forbindelse til det nye rekreative naturområde nord for det nye boligområde samt forbindelse fra boligområdet til byen.
Til tæt-lav-bebyggelsen etableres 1 parkeringsplads ved boligen og ½ parkeringsplads pr. bolig som fællesparkering. Til parcelhusene etableres 2 parkeringspladser på egen grund.
Grundvandsbeskyttelse
Planområdet ligger i et område med drikkevandsinteresser. Det er derfor vigtigt, at området planlægges, så risikoen for forurening af grundvandet minimeres, og så der også i fremtiden kan ske en naturlig nedsivning af regnvand i området, da regnvandet skal udgøre fremtidens drikkevandsressource.
Lokalplanen sætter derfor en række bestemmelser, der har til formål at beskytte grundvandet og maksimere nedsivningen. Flere af tiltagene er nævnt ovenfor: Det inkluderer udlæg af store grønne arealer i boligområdet og fastsættelsen af en maksimal befæstelsesgrad, altså en grænse for, hvor meget der må dækkes med overflader, som vand ikke uhindret kan trænge igennem.
Desuden fastlægger spildevandsplanen, at tag- og overfladevand fra befæstede arealer på den enkelte matrikel, skal nedsives på egen grund med overløb til offentligt regnvandssystem. Overfladevand fra veje, parkeringspladser og kørearealer skal være befæstet med en tæt belægning med fald mod afløb, hvorfra der sker kontrolleret afledning til regnvandssystemet.
