Lokalplanen giver mulighed for, at der etableres et område med dobbelthuse og/eller rækkehuse på et areal øst for Skolevej i Rosilde. I dag er en del af området omfattet af lokalplan nr. 208, der udlægger arealet til åben-lav boligbebyggelse. Denne mulighed er dog ikke udnyttet. Lokalplanen fastsætter bestemmelser for de nye boligers placering, højde samt udformning, for at sikre at bebyggelsen indpasses til landsbyens øvrige bebyggelse.
Planen fastsætter en bebyggelsesprocent på max 40 for den enkelte ejendom. Denne bebyggelsesprocent gælder også i tilfælde af udstykning af de enkelte grunde. I tilfælde af udstykning skal hver grund være min. 250m2, så der sikres plads til en have og/eller terrasse, parkering samt udhus til hver bolig. Bebyggelsesprocenten på 40 svarer til byggeretten efter Bygningsreglement 2018. Også den fastsatte bygningshøjde på op til 8,5 m og det maksimale etageantal på 2 følger byggeretten.
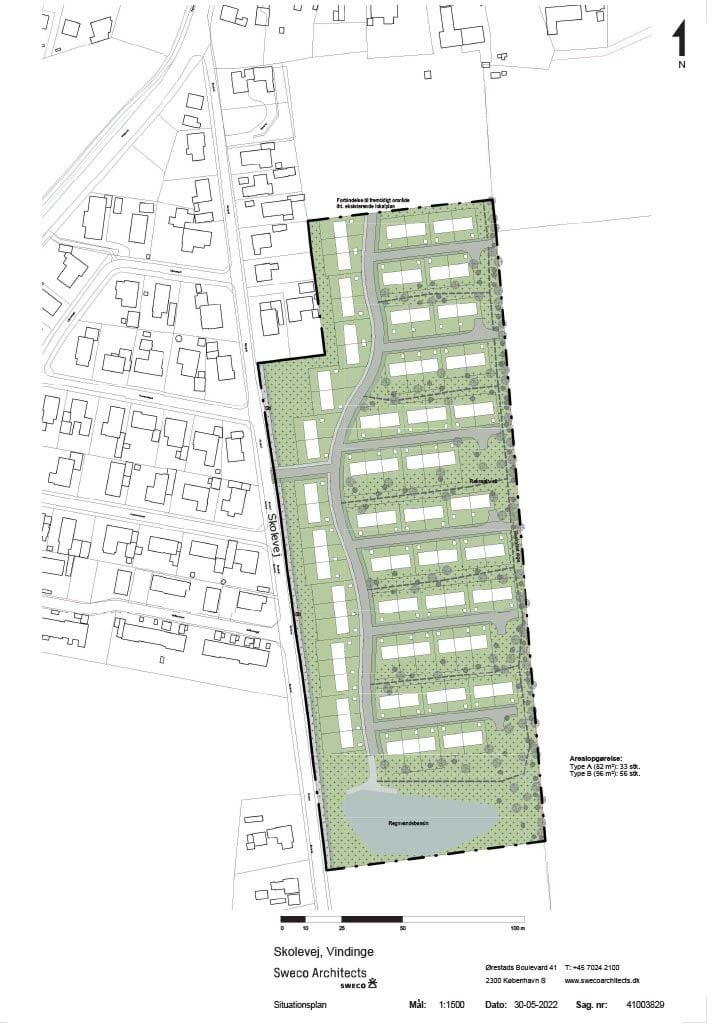
En mulig disponering af området kan ses på bebyggelsesplanen på figur 5.

Figur 5: Eksempel på bebyggelsesplan for planområdet. I eksemplet er vist en udbygning med 89 boliger i varierende størrelse disponeret med dobbelthuse samt rækkehuse. Bemærk at bebyggelsesplanen kun er én mulighed for Disponering af området. Det er planens bestemmelser, der i sidste ende fastsætter, hvordan området må disponeres.

Figur 5: Eksempel på bebyggelsesplan for planområdet. I eksemplet er vist en udbygning med 89 boliger i varierende størrelse disponeret med dobbelthuse samt rækkehuse. Bemærk at bebyggelsesplanen kun er én mulighed for Disponering af området. Det er planens bestemmelser, der i sidste ende fastsætter, hvordan området må disponeres.
Vejadgang og parkering
Udover at fastsætte bestemmelser for udformningen og udseendet af bebyggelsen, fastsætter planen en række bestemmelser for, hvordan området i øvrigt må indrettes. Planområdet skal vejbetjenes fra Skolevej med én overkørsel, med en principiel placering som vist på kortbilag 2. Planen kræver, at der indrettes tilstrækkelige parkeringsarealer, hvilket vil sige min. 1,5 p-plads pr. bolig hvoraf min. 1 p-plads skal ligge i forbindelse med boligen.
Interne veje og stier skal udlægges som private fællesveje og -stier.
Bebyggelse
Planen fastlægger bestemmelser om at bebyggelsesprocenten ikke må overstige 40% for den enkelte ejendom. Planen muliggør at opføre boliger i op til 2 etager og i en højde på maksimalt 8,5 m.
Lokalplanen lægger op til variation i området gennem materialevalg, beklædning og farveudtryk. Facaderne på dobbelthusene og/eller rækkehusene skal fremstå med enten blank mur i tegl, vandskuret/pudset mur, skifer eller i træ. Tage skal udføres i tagsten, træ, tagpap eller med beplantning som grønne tage. Lokalplanen indeholder også bestemmelser om, at sekundære bygninger kun må udføres i teglmur, træ, skifer, eternit, cementfiber og metal, der ikke reflekterer lys. Malede overflader skal fremstå i farver inden for jordfarveskalaen, som fremgår af lokalplanens bilag 3. De to delområder, som vist på kortbilag 2, skal gives egen karakter, så bebyggelsen inden for hver klynge fremstår ensartet, men dog forskellig fra det anden delområde. Det kan f.eks. ske gennem valg af materialer, farver, tagform, facadeudformning mv. Endvidere forstærkes områdets tilpasning til den eksisterende by ved at fastsætte taghældningen til saddeltag for delområde A, som ligger nærmest Vindinge by.
Fælles friarealer
Området disponeres med grønne kiler, der skaber fælles friarealer mellem boligerne. De grønne kiler mellem boligerne giver forskellige muligheder for friarealer til boligerne. Haverne tilhørende boligerne må eksempelvis afgrænses med hæk eller hegn ud mod det fælles friareal.
De fælles friarealer ønskes disponeret med mulighed for at skabe variation, så der er områder med enggræs, der fremmer biodiversiteten, og mulighed for afgrænsede områder med plænegræs, hvor der kan ske ophold og skabes mulighed for aktivitet. Der ønskes ligeledes mulighed for etablering af mindre grupper af lavere beplantning, samt mulighed for træer, plantet som enkeltstående træer og/eller i små grupper.
