Strandbeskyttelse
En del af lokalplanområdet er omfattet af strandbeskyttelseslinjen (§15) hvor indenfor, der ikke må foretages ændring i tilstanden, mv. Der kan dog opnås dispensation til visse arbejder ved ansøgning til Kystdirektoratet, der er myndighed på området.
Naturbeskyttelse
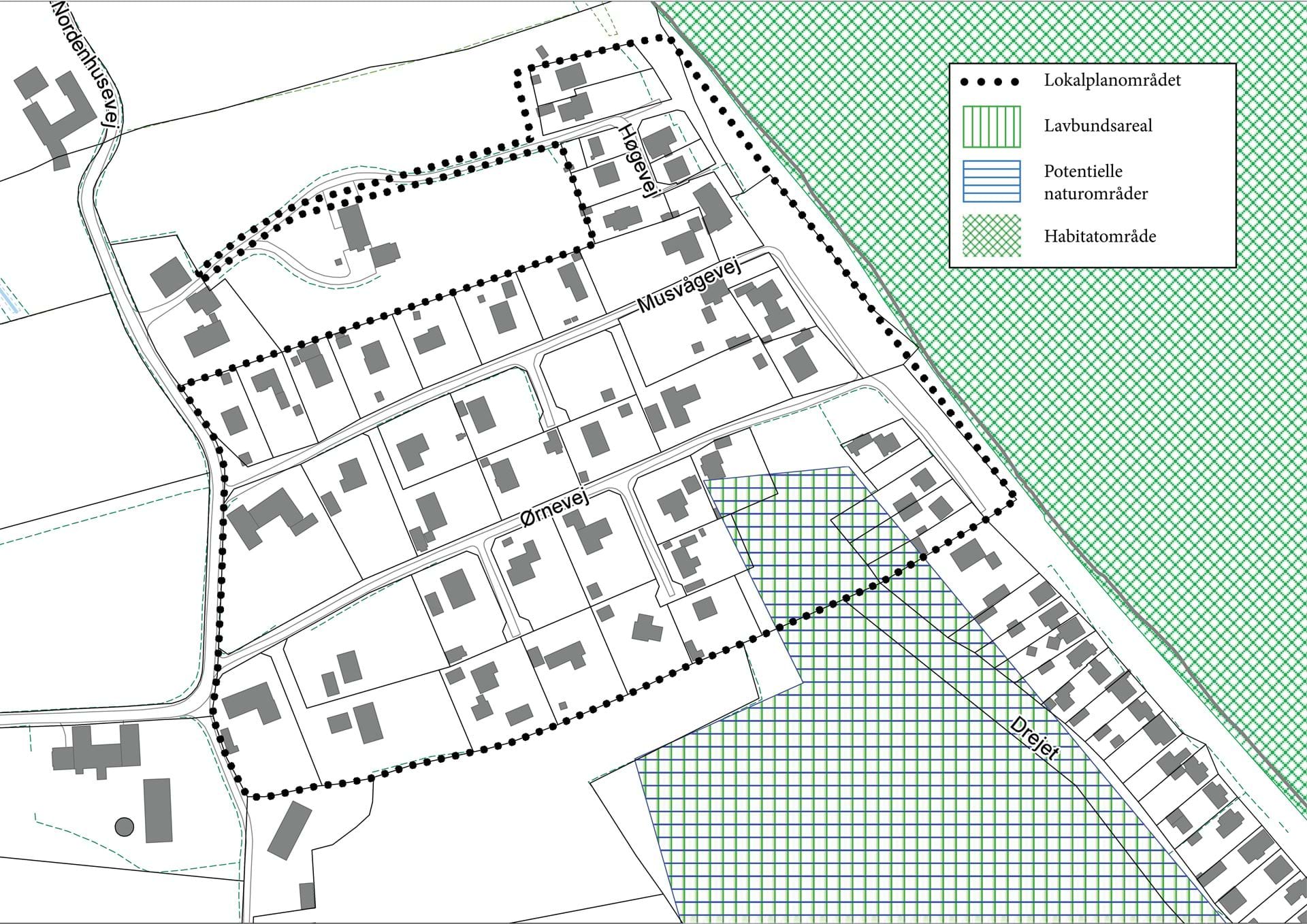
Lokalplanområdet grænser op til, og en mindre del overlapper med, et udpeget lavbundsområde (se nedestående figur). De udpegede lavbundsarealer skal friholdes for byggeri og anlæg mv. Eventuelle anlæg på lavbundsarealer bør udformes, så en fremtidig vandstandshævning og naturudvikling på arealerne er mulig. Lokalplanen inddrager ikke nye arealer til bebyggelse, men fastholder sommerhusområdet som i den hidtidige planlægning.Bebyggelse her indenfor er ikke hensigtsmæssig, da området er i risiko for at stå under vand. Muligheden for at bebygge et større areal af de enkelte sommerhusgrunde vurderes ikke at give anledning til en forringelse af mulighederne for en fremtidig vandstandshævning og naturudvikling, da arealerne allerede i dag fremstår bebyggede.
Lokalplanområdet grænser op til, og en mindre del overlapper med, et område der er udpeget til potentielt naturområde i Kommuneplan 2017 (se nedestående figur). Indenfor de udpegede potentielle naturområder kan der som udgangspunkt ikke bebygges eller etableres anlæg. Tilladelse kan kun meddeles, hvis der udlægges et tilsvarende areal, der har lige så stort potentiale som naturområde, som dét areal, der tages ud.
Internationale naturbeskyttelsesområder
Lokalplanområdet grænser op til et Natura2000 område i form af habitatområdet Storebælt og Vresen (se nedenstående figur ). Lokalplanen må ikke påvirke udpegningsgrundlaget for habitatområdet, der i Storebælt og Vresen udgøres af marsvin og revet. Da lokalplanen ikke omfatter arealer, der er omfattet af Natura2000 området, og i øvrigt ikke vurderes at medføre en påvirkning af udpegningsgrundlaget, vurderes lokalplanen ikke at påvirke habitatområdet Storebælt og Vresen.
Figur: Lavbundsarealer og potentielle naturområder
Figur: Lavbundsarealer og potentielle naturområder
Inden for lokalplanområdet er der et mindre areal der er udpeget til §3 natur, i form af eng (se nedenstående figur). De udpegede naturområder skal friholdes for byggeri og anlæg mv. Arealet er udlagt til fælles friareal og kan ikke bebygges, det vurderes derfor at denne lokalplan ikke vil have negativ indvirkning på naturområdet.

Figur: Beskyttede naturtyper.

