Denne lokalplan udlægger arealer til anvendelse for 50 åben-lav boliger øst for Kertemindevej i forlængelse af den eksisterende by i Ullerslev. I første omgang muliggøres udstykning af ca. 13 parceller til parcelhuse i den sydligste del af planområdet mens den videre udvikling forudsætter en nærmere lokalplanlægning. Lokalplanen giver også mulighed for at nedrive den nordlige del af den eksisterende bebyggelse Højvangen og opføre 9 tæt-lav boliger i form af rækkehuse i området. Planens hovedformål er at overføre landzoneareal til byzone for at muliggøre opførelse af både åben-lav og tæt-lav boliger i sammenhæng med den eksisterende by.
Figur 6: Illustration af, hvordan det nye boligområde i fremtiden kan tage sig ud set fra Kertemindevej, nord for den nye udstykning.
Der er i planen fokus på at skabe sammenhængende friarealer mellem boligerne samt give mulighed for et større naturområde i den nordlige tredjedel af planområdet. Baggrunden for at udlægge friarealer og et naturområde er bl.a. at sikre gode forhold for nedsivning af regnvand, med en høj grad af ubefæstede arealer som kan tilbageholde og forsinke regnvand. Dels ligger planområdet i indvindingsoplande til to lokale vandværker, og dels er jordforholdene inden for planområdet præget af lerjord, hvor nedsivning tager tid og derfor kan der ofte ske ophobning af vand i de øverste jordlag. Samlet set skal planen sikre at området landskabeligt udformes med et gennemgående grønt helhedspræg med grønne kiler mellem boligerne som fælles friarealer, der binder området sammen og kan tilbageholde regnvand og sikre nedsivning.
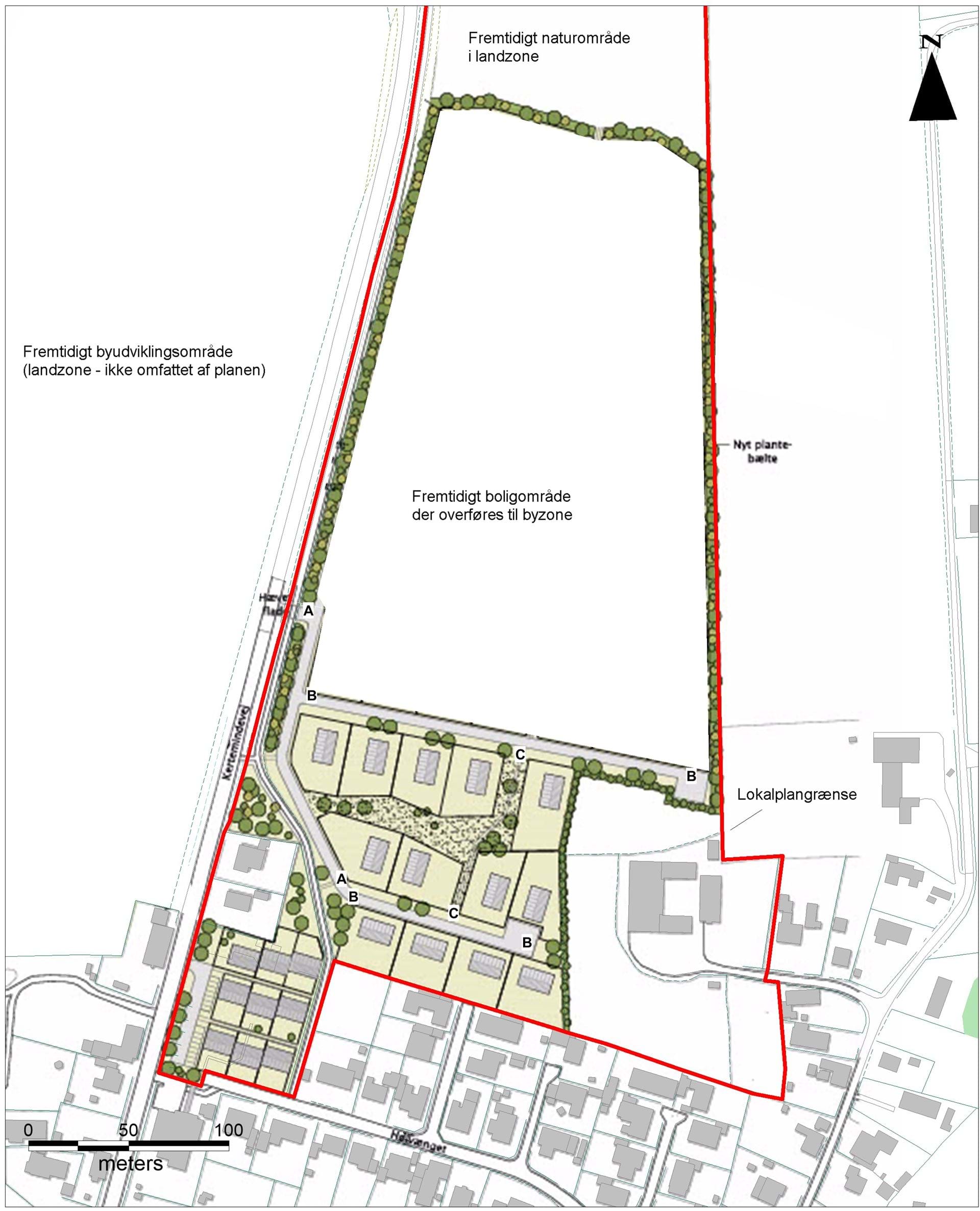
Lokalplanen udgør halvdelen af byudviklingsområdet nord for Ullerslev, nemlig den del, der ligger på den østlige side af Kertemindevej. Planen giver i første omgang mulighed for udstykning af den sydligste del af planområdet mens udviklingen af området nord herfor forudsætter en nærmere lokalplanlægning. På længere sigt skal også området på den vestlige side af Kertemindevej udbygges.
Figur 7: Illustrationsplan for byudviklingens etape 1 til boligformål nord for Ullerslev. Området skal vokse fra syd mod nord. Denne lokalplan omfatter området på den østlige side af Kertemindevej (vist med rød afgrænsning). Planen giver i første omgang mulighed for udstykning af den sydligste del af planområdet mens udviklingen af området nord herfor forudsætter en nærmere lokalplanlægning. På sigt skal også området vest for udvikles. Delområdeopdelingen fremgår af bilag 2.
Planen opdeler området i fem delområder, hvor delområde I og II er til åben-lav boliger (parcelhuse) og grønne kiler. Delområde I opdeles nærmere i delområde Ia og Ib, hvor det i første omgang kun vil være muligt at udstykke delområde Ia (den sydligste del). Delområde Ib kan først udvikles på baggrund af en nærmere lokalplanlægning for området. Delområde III er til tæt-lav boliger (rækkehuse), hvor Højvangen ligger i dag. Delområde IV er udelukkende til den eksisterende gård, der ligger jord til byudviklingen. Delområde V er til et større rekreativt naturområde i den nordlige del af planområdet i tilknytning til eksisterende naturarealer. Delområdeopdelingen fremgår af bilag 2.
Udlæg til parcelhuse og friarealer (delområde Ia, Ib og II)
Lokalplanen indeholder bestemmelser for to delområder, der udlægges til parcelhusgrunde. Delområde I er opdelt i underområder Ia og Ib. Planen opsætter bestemmelser for at det samlede etageareal for bebyggelse på en grund ikke må overstige 30 procent af grundens areal. Der fastsættes på nuværende tidspunkt ikke nærmere bestemmelser for delområde Ib, da udviklingen af dette område vil kræve en nærmere lokalplanlægning. For delområderne Ia og II gælder endvidere at der maksimalt må ske befæstning på 45 procent af grundens areal. Det gælder alle former for befæstelse så som skure, terrasser, flisebelægning og alle øvrige. Formålet er, at sikre, at der fortsat er store arealer, hvor der kan ske naturlig nedsivning af regnvand, så grundvandsdannelsen ikke forhindres.
I delområde Ia, der udlægges til parcelhusgrunde, vil det være mulig at opføre boliger i op til 2 etager og i en højde på maksimalt 8,5 m målt fra bebyggelsens niveauplan. For et mindre delområde inden for planområdet, tættest ned mod den eksisterende by i Ullerslev, gælder det dog særligt at bebyggelsen maksimalt må opføres i 1,5 etage og op til 6 meter over bebyggelsens niveauplan (delområde II). Begrænsningerne i etager og bygningshøjde skal sikre at der skabes sammenhæng til den eksisterende by i Ullerslev med en glidende overgang i bygningshøjder og etager mod det nye boligområde. Det skal også give plads til særpræg og variation i boligernes udtryk og indretning med mulighed for at opføre henholdsvis 1-,1,5- og 2-plans boliger.
Figur 8: Det nye boligområde set fra Kertemindevej.
Det er et centralt element i planen, at facaderne ud mod boligvejene placeres inden for samme afstand fra vejen. Det gøres for at give en ensartet rytme i facaderne der giver boligerne visuelle fællestræk der skaber en sammenhængende karakter i området. Det skal være med til at skabe et hyggeligt, attraktivt kvarter, hvor boligerne ligger forholdsvis ens på grundene, men kan variere i arkitektonisk udtryk, materialer og højde. Med planens krav om en afstand til vejskel på 4,5 til 6 meter, sikres dette.
Figur 9: En boligvej i det nye boligområde. Boligernes facader ligger i en ensartet afstand fra boligvejen og skaber på den måde et intimt og imødekommende boligområde.
Der gælder generelt særlige bestemmelser for de to boliger langs Kertemindevej. De bebyggelsesregulerende bestemmelser for disse grunde fastholdes uændret ift. den nuværende lokalplan med en bebyggelsesprocent på 25.
I områderne til parcelhusgrunde (delområde Ia og II) skal facader fremstå som enten blank mur i tegl med farvespil, som vandskuret/pudset mur eller i træ og tage i tagsten, træ eller med beplantning som grønne tage. Lokalplanen indeholder også bestemmelser for at sekundære bygninger kun må udføres i træ, skifer, eternitskifer, cementfiber og metal der ikke reflekterer lys. Malede overflader skal fremstå i farver inden for jordfarveskalaen. Lokalplanen lægger med disse bestemmelser op til variation i området gennem materialevalg, beklædning og farveudtryk.
Figur 10: Eksempler på teglmur med farvespil.
I boligområdet der udlægges til parcelhusgrunde (delområde Ia og II), må der kun fortages terrænreguleringer på op til +/-0,5 m i det naturlige terræn og ikke nærmere skel end 0,5 m.
På friarealerne mellem boligerne skal der til gengæld foretages terrænreguleringer med det formål at sikre at områdets evne til midlertidig tilbageholdelse af større regnvandsmængder, i form af LAR-løsninger. Friarealerne udlægges i enggræs med beplantning i lavninger, der kan håndtere større regnvandsmængder, samt solitære træer, og lavere buske eller hække som beplantning. Beplantningen inden for det fælles friareal mellem boligerne må kun være i form af hjemmehørende og egnstypiske arter. På bilag 6 ses en planteliste over egnede arter til beplantning.
Figur 11: Eksempel på areal til opsamling af regnvand i forbindelse med større regnmængder, der det meste af året kan bruges som fodboldbane. Østerbro, Odense.
Inden for det fælles friareal skal der etableres et aktivitets- eller opholdsområde for hver etape der ibrugtages. Det kan være i form af en legeplads, en fælles bål- eller grillplads, en motionsplads og lignende. Formålet er at aktivitets- eller opholdsområdet målrettes områdets beboere og kan understøtte hverdagslivet i området.
Figur 12: Grøn kile mellem boligerne. Det grønne område ligger som naturareal med spredt beplantning. Det er ikke hensigten at det skal fremstå pænt og nydeligt velplejet, men som et område, hvor planter og insekter kan sprede sig. Formålet med den grønne kile er både at skabe sammenhængende grønne omgivelser for boligområdet og skabe gode muligheder for naturlig nedsivning af regnvand.
Mod det åbne land mod øst og nord samt mod Kertemindevej skal boligområdet skærmes af et beplantningsbælte. Mod Kertemindevej og mod nord vil der være tale om et nyt beplantningsbælte bestående af udvalgte egnstypiske og hjemmehørende arter. Mod øst afskærmes området i forvejen af et beskyttet dige med beplantning. Planen sikrer, at dette dige bevares, men også at det kan suppleres med ny beplantning så vidt det er muligt og hensigtsmæssigt inden for gældende regler og hensynet til digets naturværdi og kulturhistoriske værdi.
Figur 13: Boligområdet set fra landskabet øst for planområdet. Det beskyttede dige er med til at sløre byens kant mod det åbne land og skabe en fin arrondering af området.
Udlæg til rækkehuse (delområde III)
I delområdet der udlægges til tæt-lav boligbyggeri i form af rækkehuse må bebyggelsen maksimalt opføres i 2 etager i maksimalt 8,5 meters højde med en bebyggelsesprocent på maksimalt 40 for delområdet som helhed. Rækkehusbebyggelse med to eller flere sammenhængende boliger må kun placeres sådan at boligernes facader forskydes ift. hinanden. Det skal gøres med frem- eller tilbagetrækning i facaderne på minimum 0,5 meter der hvor boligadskillelsen er. Det skal være med til at understøtte en variation i udtrykket af boligmassen inden for delområdet. For at skabe sammenhæng stilles der i bestemmelserne krav om saddeltage samt ensartet materialevalg i hele bebyggelsen inden for delområdet. Lokalplanen giver i dette delområde mulighed for de samme materialevalg, som i områderne til parcelhusbyggeri.
Inden for delområdet, der udlægges til tæt-lav boligbyggeri, må der - i tråd med de øvrige boligområder - kun fortages terrænreguleringer på op til +/-0,5 m i det naturlige terræn og ikke nærmere skel end 0,5 m.
Figur 14: To typer af rækkehuse, som eksempler på, hvad der kan bygges i området. Til venstre et klassisk rækkehus i teglsten og til højre et mere moderne rækkehus i træ.
Det eksisterende gårdanlæg (delområde IV)
Det firelængede gårdanlæg, der hidtil har dyrket jorden, der nu planlægges til byudvikling bliver nu begrænset til en større grund inden for byudviklingsområdet. Der sættes relativ vidde rammer for bebyggelsen inden for området. For at sikre, at det nye byudviklingsområde ikke kommer for tæt på gårdanlægget - og gårdanlæggets bygninger ikke kommer for tæt på byudviklingsområdet - fastsætter planen, at nye bebyggelse i delområdet skal holdes min. 20 m fra delområdegrænsen til boligområdet. For at skærme områderne fra hinanden kræves der desuden etableret et beplantningsbælte mellem delområderne.
Udlæg til naturområde (delområde V)
Lokalplanen udlægger et større areal til naturområde. Området skal være et offentligt tilgængeligt naturområde med rekreativ værdi med mulighed for skovrejsning. Inden for delområdet må der kun indrettes naturareal med rekreative elementer. Delområdet skal indrettes ud fra en samlet plan for hele området, der tager hensyn til naturarealerne nord for lokalplanområdet og som indarbejder en stiforbindelse fra de fælles friarealer mellem boligerne og fra Kertemindevej. Beplantning inden for naturområdet må kun være i form af hjemmehørende og egnstypiske arter.
Inden for området er der mulighed for at opføre mindre bebyggelse der understøtter områdets anvendelse til natur- og rekreative formål. Det kan eksempelvis være et skur til opbevaring, shelters, bålhytter, udkigstårn og lignende. Alle facader må kun udføres i træ med tag af tegl eller grønne tage. For at sikre at bebyggelsen og anvendelsen heraf ikke giver gener for nærmeste beboere skal bebyggelse placeres mindst 100 meter fra boligområdet.
Figur 15: Eksempel på naturområde, der kan inspirere til indretningen af arealet i den nordlige del af planområdet. Her er det Rigkær i Bondemosen i Ullerslev.
Veje og stier
Det nye boligområde får vejadgang fra Kertemindevej. De nye rækkehuse får separat vejadgang, ligesom Højvangen har det i dag. Vejadgangen til parcelhusområdet etableres ca. midt i udstykningen. Boligområdet betjenes via en stamvej, der planlægges til at forløbe parallelt med Kertemindevej. Fra stamvejen laves fem blinde boligveje med vendeplads for enden. Boligerne får vejadgang fra boligvejene.
De boliger, der ligger tættest på stamvejen kan kun få vejadgang fra den del af grunden mod boligvejen, der ligger længst væk fra stamvejen. Det er for at sikre, at indkørsler ligger så langt som muligt fra krydset til stamvejen.
Vejene planlægges til lave hastigheder med max. 30 km/t. Der skal derfor laves hastighedsdæmpende foranstaltninger, som f.eks. hævede flader ved krydsninger. På den måde skabes et trygt og sikkert område, hvad angår færdslen.
Figur 16: Eksempel på profiler for hhv. stiudlæg, stamvejen og boligvejene. Planen fastsætter at kørebanebredden for vejudlæg skal være min. 5 m og max. 6 m.
I lokalplanområdet er der allerede i dag etableret en dobbeltrettet cykelsti parallelt med Kertemindevej. Stien forbinder Flødstrup med Ullerslev, og fører skolebørn mod skole og idrætsfaciliteter syd for Odensevej. Der skabes en forbindelse til denne stiforbindelse fra det nye boligområde. Der planlægges en nord-syd gående sti midt i boligområdet. Denne sti skal forbinde området på tværs for gående og cyklister. Stien planlægges i den grønne kile og skal også skabe en forbindelse til det nye rekreative naturområde nord for det nye boligområde.
Placeringen af veje og stier kan ses på illustrationsplanen, bilag 4.
Figur 17: Eksempel på boligvej med parkeringsmulighed.
Grundvandsbeskyttelse
Planområdet ligger i et område med store grundvandsinteresser. Det er derfor vigtigt, at området planlægges, så risikoen for forurening af grundvandet minimeres, og så der også i fremtiden kan ske en naturlig nedsivning af regnvand i området, da regnvandet skal udgøre fremtidens grundvandsressource.
Lokalplanen sætter derfor en række bestemmelser, der har til formål at beskytte grundvandet og maksimere nedsivningen. Flere af tiltagene er nævnt ovenfor: Det inkluderer udlæg af store grønne arealer i boligområdet, fastsættelsen af en maksimal belægningsgrad, altså en grænse for, hvor meget der må dækkes med overflader, som vand ikke uhindret kan trænge igennem, og forskellige sikringer af de fremtidige kloakledninger og eventuelle vandbassiner i området.
Udover lokalplanens bestemmelser bliver der også igangsat en række initiativer til sikring af grundvandet. Nyborg Kommune vil f.eks. ved udstykning til byggegrunde tinglyse forbud mod anvendelse af sprøjtemidler for at beskytte grundvandet mod forurening samt forbud mod visse byggematerialer. Kommunen vil også sørge for oplysning om (1) at håndtering af væsker samt farligt affald skal ske på befæstet areal. Eventuelt spild skal straks opsamles; (2) at vask af biler ikke må finde sted med mindre vaskevandet opsamles og bortskaffes i henhold til gældende regler; og (3) at vand fra højtryksrensning eller kemiske rensevæsker fra anden form for rensning af tage skal enten opsamles og bortskaffes i henhold til gældende regler eller ledes til kloak (spildevandssystemet).












