Områdets anvendelse og disponering
Lokalplanen fastlægger områdets anvendelse til boligformål i form af helårsbeboelse.
Lokalplanen er disponeret således, at der sikres en forholdsvis tæt bymæssig bebyggelse, som samtidig tager hensyn til kirkegården mod syd. Lokalplanen fastlægger således at den højeste bebyggelse placeres længst mod nord, hvor der gives mulighed for punkthuse i tre etager, mens bebyggelsen aftager i højde mod kirkegården, hvor der kan bygges tæt-lave boliger i op til 2 etager. Bebyggelsen skal derudover respektere en bræmme mod kirkegården på minimum 10 m.
Byggeri og anlæg til fælles funktioner tilknyttet boligområdet, samt tekniske anlæg som naturligt henhører i bymæssig bebyggelse, kan ligeledes opføres indenfor området.
Lokalplanen er opdelt i tre delområder. Delområde 1 udlægges til tæt-lave boliger, delområde 2 til etageboliger i form af punkthuse og delområde 3 til grønt område. Det bemærkes, at delområde 3 ikke kan anvendes til opholdsarealer grundet støj fra jernbanen.
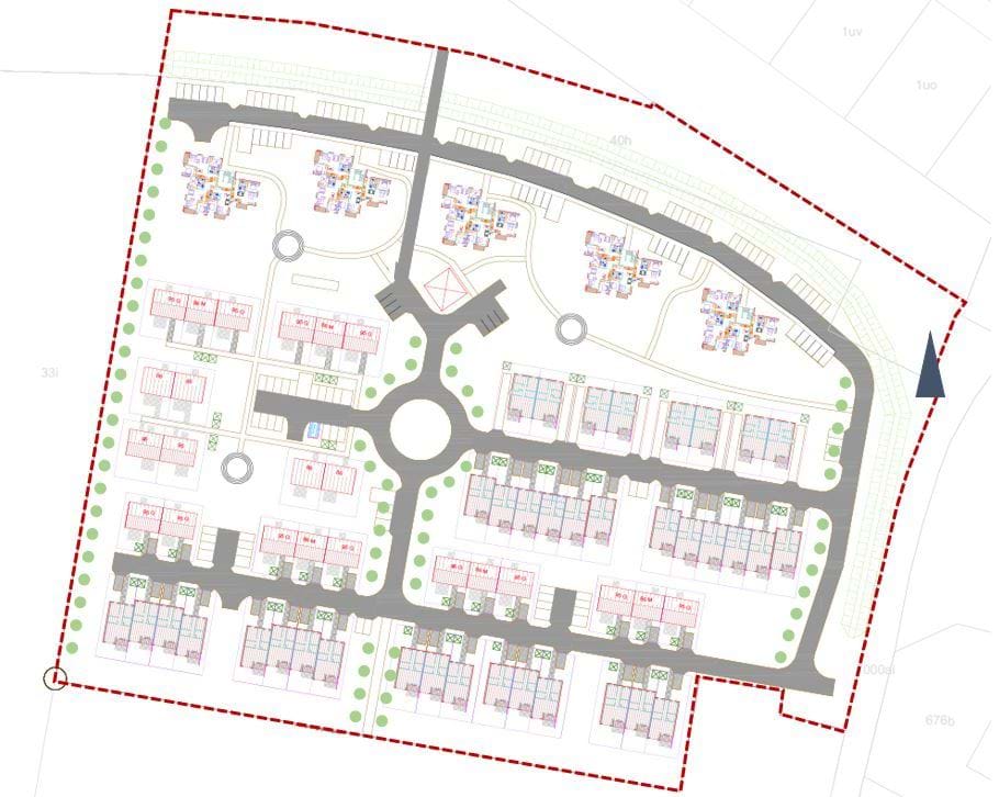
Eksempel som viser, hvordan området eksempelvis kan disponeres med punkthuse mod nord og tæt-lav bebyggelse mod syd.
Bebyggelsens omfang og placering
Lokalplanen fastlægger bestemmelser om at etageboligerne maksimalt må opføres i 3 etager og 12 meters højde, mens de tæt-lave boliger maksimalt må opføres i to etager og 8,5 meters højde.
Bebyggelsesprocenten for området er fastsat til 40 %.
Lokalplanen indeholder en byggelinje i forhold til jernbanen nord for området. Byggelinjen er fastlagt 50 m fra spormidten og er indført ud fra et hensyn til vibrationer. Byggelinjen er fastsat i henhold til Miljøstyrelsens vejledning om støj og vibrationer fra jernbaner af 01/01/1997.
Bebyggelsens ydre fremtræden
Lokalplanen fastlægger bestemmelser om bebyggelsens ydre fremtræden. Bestemmelserne tager afsæt i, at der bygges centralt i byen med en unik placering bag det barokke kirkegårdsanlæg. Lokalplanen stiller derfor krav om, at der vælges traditionelle materialer som tegl og/eller pudsede facader, som det primære facadeudtryk. Lokalplanen fastlægger derudover at tage skal udføres med tagsten i enten tegl eller beton, alternativt udføres som flade grønne tage.
Farveholdningen i den samlede bebyggelse skal respekterer den klassiske jordfarveskala.
Eksempler på tæt-lav boligbyggeri i Nyborg opført af samme bygherre.
Ubebyggede arealer
Det nye boligområde bliver nabo til kirkegården, som er anlagt i 1920-erne. Kirkegården er tegnet som et barokt anlæg af den daværende stadsgartner i Århus og var oprindelig tænkt som et anlæg på 80.000 m2. Kun den sydligste del af planen blev gennemført.
I kommuneplan 2021 står anført, at boligområdets indretning herunder grønne arealer skal planlægges, så der skabes en visuel og landskabelig sammenhæng med kirkegårdens arkitektonisk gennemarbejdede haveplan.
Lokalplanen viderefører derfor kirkegårdens symmetriakse via et bånd igennem lokalplanområdet, som skal friholdes for bebyggelse. Samtidig stiller lokalplanen krav om, at der plantes rækker af træer på udvalgte strækninger i bebyggelsen, samt at evt. hegn skal udføres som levende hegn med hække/buske, hvilket har referencer til kirkegårdens udtryk.
Illustrationen ovenfor viser den oprindelige haveplan for det samlede kirkegårdsanlæg, hvoraf kun den sydligste del er gennemført. Fotoet til højre viser områdets karakteristiske bøgehække og en taktfast række med træer.
Ubebyggede arealer i bebyggelsen kan med fordel udføres med integrerede løsninger for opbevaring af overfladevand i forbindelse med fremtidige regn- og skybrudshændelser. Eksempelvis i form af regnbede, regntrug og bassiner.

Eksempler på grønne LAR løsninger (lokal afledning af regnvand)

Eksempler på grønne LAR løsninger (lokal afledning af regnvand)
Veje, stier og parkering
Adgangen til det nye boligområde skal ske via Ringvej på den nordlige side af planområdet.
De interne veje i området skal indrettes som dobbeltrettede veje og skal rumme plads til blandt andet rednings- og renovationskøretøjer. Vejenes linjeføring, opbygning, bredde, tilslutning til andre veje, vejafvanding og fremføring af forsyningsledninger skal godkendes af Nyborg Kommune.
Der skal etableres parkeringspladser til biler og cykler i overensstemmelse med gældende parkeringsnorm i Nyborg Kommune. For både etageboliger og tæt-lave boliger er parkeringskravet min. 1½ p-plads pr. bolig. Etageboligerne skal derudover have 3 cykelparkeringspladser pr. 100 m2 etageareal.
Ved anlæg af parkeringspladser som er fælles for bebyggelsen, herunder gæsteparkering, så skal der desuden indrettes handicappladser i overensstemmelse med gældende parkeringsnorm.
Håndtering af spilde- og overfladevand
Området er omfattet af Nyborgs Spildevandsplan 2018-2024. Området ligger indenfor kloakopland, F15N, som er et fælleskloakeret område. Den maksimale afløbskoefficient er fastsat til 0,15.
Nyborg Forsyningsselskab og bygherre har drøftet en lokal aftale, hvor området separatkloakeres, dvs. at spildevand og regnvand skal separeres før tilslutning til det offentlige spildevandssystem. Afledning af overfladevand fra boligområdet begrænses til maksimalt 15 l/s og der etableres en regnvandspumpestation med tilslutning til forsyningens eksisterende trykledning.
I forhold til det konkrete lokalplanområde, så vil der være behov for at bygherre tilbageholder/forsinker overfladevandet, inden det kan afledes til forsyningens spildevandssystem.
Forsinkelse af overfladevand kan eksempelvis ske ved hjælp af regnvandsbassiner, regnbede, faskiner, magasiner under eller på terræn eller andre former for LAR-løsninger afhængig af boligområdets endelige indretning og områdets fysiske egenskaber.
Hvis der etableres regnvandsbassin, så skal det udformes organisk og fremstå som rekreativt areal.
Afværgeforanstaltninger i forhold til støj
Lokalplanområdet ligger umiddelbart syd for jernbanen. En indledende støjredegørelse viser, at der skal etableres en støjafskærmning af lokalplanområdet for at sikre, at boligerne og de primære opholdsarealer ikke belastes ud over gældende grænseværdier for jernbanestøj.
Bygherre foreslår, at etablere støjafskærmningen i form af en jordvold, hvilket er indføjet i lokalplanens bestemmelser, som en forudsætning for at den nye bebyggelse kan tages i brug. Jordvolden skal beplantes.




