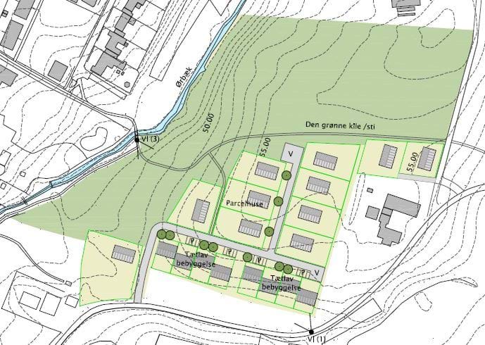
Lokalplanen opdeler planområdet i tre delområder, se bilag 2. Delområde 1 og 2 udlægges til nyt byzoneareal til hhv. parcelhuse og rækkehuse. Delområde 3 udlægges til et nyt naturområde i tilknytning til Ørbæk Å.
Delområde 1 - Parcelhusgrunde
Inden for delområde 1 til parcelhuse muliggøres en udstykning af grunde på mellem 700 og 1.000 m2. Det giver plads til ca. 10-11 grunde inden for området. Grundene vil ligge attraktivt på det skrånende terræn, og fra flere af grundene vil der være udsigt til Ørbæk Å.
Inden for delområdet vil der kunne opføres traditionelle parcelhuse i et eller to plan, dog med en max. højde på 7,5 m. Planen fastsætter rummelige bestemmelser for nybyggeri, så der er mulighed for at opføre mange typer af boliger. Der stilles dog krav om, at taghældningen på boliger ikke må overstige 45 grader. Begrænsningen af højden skyldes et hensyn til landskabet.
Området er relativ kuperet med fald mod åen mod vest og mod et lavbundsareal ved Sentvedvej mod syd. Der kan derfor med fordel arbejdes med at optage terrænforskelle i bebyggelsen gennem forskudte etager, parterreplan og lignende. Se referencebilleder herunder.
Figur 4: Referencebilleder af parcelhuse i et kuperet område, hvor der er arbejdet med parterreplan. Øverst fra Knebel, Syddjurs Kommune, nederst fra Tommerup, Assens Kommune.
Der er mulighed for et bredt materialevalg. Til tage på boliger må dog kun anvendes tagsten af tegl, eternitskifer, naturskifer eller betontagsten. Der må også etableres grønne tage (sedum eller anden vandabsorberende vegetation) eller tage af solpaneler. Der må ikke anvendes reflekterende materialer; anlæg til indvinding af solenergi er dog undtaget.
Facader skal fremtræde i murværk, teglsten (blank, pudset eller vandskuret) eller træ (ikke bjælkekonstruktioner og krydsende hjørner). Mindre bygningsdele må fremtræde i andre materialer. Facader på boligbebyggelse og sekundær bebyggelse må kun fremstå i materialernes naturlige farve, sort, jordfarver eller en blanding af disse med hvid eller sort, se bilag 3.
For at sikre et samlet grønt udtryk fastsætter planen, at hegn mod skel kun må etableres som levende hegn (hæk).
For at sikre, at det nye boligområde tilpasses landskabet stilles der en række krav, der skal begrænse omfanget af terrænregulering i de mest kuperede dele af delområderne til boligformål. I en mindre del af lokalplanområdets delområde 1 (svarende til én parcelhusgrund) stilles krav om, at boligen etableres i parterreplan.
Delområde 2 - Rækkehuse
I den sydlige del af lokalplanområdet, nærmest Sentvedvej, gives der i delområde 2 mulighed for opførelse af rækkehuse. Planens bestemmelser giver her plads til ca. 8 boliger i op til 2 plan. I tilfælde af udstykning skal der sikres en grundstørrelse på minimum 250 m2.
Bebyggelse i delområde 2 skal placeres inden for det på kortbilag 2 udlagte byggefelt. Byggefeltet er fastlagt for at sikre, at der ikke placeres bebyggelse inden for et udlagt lavbundsareal, hvor der kan være blød bund og samle sig vand, eller inden for sigtekurver for bilister på Sentvedvej og en intern adgangsvej.
For at sikre variation i bebyggelsen er der krav om forskydning af de enkelte rækkehuse ift. nabohuset, sådan at der ikke laves en lang sammenhængene boligbebyggelse.
Der er mulighed for et bredt materialevalg. Til tage på boliger må dog kun anvendes tagsten af tegl, eternitskifer, naturskifer eller betontagsten. Der må også etableres grønne tage (sedum eller anden vandabsorberende vegetation) eller tage af solpaneler. Der må ikke anvendes reflekterende materialer; anlæg til indvinding af solenergi er dog undtaget.
Facader skal fremtræde i murværk, teglsten (blank, pudset eller vandskuret) eller træ (ikke bjælkekonstruktioner og krydsende hjørner). Mindre bygningsdele må fremtræde i andre materialer. Facader på boligbebyggelse og sekundær bebyggelse må kun fremstå i materialernes naturlige farve, sort, jordfarver eller en blanding af disse med hvid eller sort, se bilag 3.
For at sikre, at det nye boligområde tilpasses landskabet stilles der en række krav, der skal begrænse omfanget af terrænregulering i de mest kuperede dele af delområderne til boligformål. I delområde 2 stilles krav om, hvor store terrænspring, der må etableres mellem boligerne og Sentvedvej.
Figur 5: Referencebilleder af rækkehusbebyggelse, hvor bygninger med to boliger i hver er placeret forskudt, enten delvist sammenbyggede eller helt opdelt.
Illustrationer af, hvordan området vil kunne udvikles i tråd med planens bestemmelser kan ses på nedenstående skitseplan og tegninger. Bemærk, at det blot er et eksempel på, hvordan lokalplanområdet kan udvikles.
Figur 6: Illustrationsplan for en ny udstykning ved Sentvedvej, som det ville være muligt at realisere inden for lokalplanen. Bemærk, at det blot er et eksempel på, hvordan lokalplanområdet kan udvikles.
Figur 7: Skitser, der viser hvordan et nyt boligområde kan tage sig ud set fra det åbne land (øverst), Sentvedvej syd for området (midterst) og fra Ørbæk Å vest for området (nederst).
Delområde 3 - Naturområdet
Lokalplanen fastsætter, at delområde 3 kun må udlægges som engareal i græsser med urter. Formålet med udlægget af engområdet er flerfoldigt: Naturarealet skal
- Fastholde den åbne karakter af landskabet tæt op ad Ørbæk Å. Af samme årsag må der ikke plantes træer eller buske højere end 1,5 m i området.
- Fastholde den grønne kile, der fører landskabet helt ind til det centrale Ørbæk ved Hovedgaden.
- Styrke spredningskorridoren for dyr og planter langs åen.
- Skabe attraktive omgivelser for det nye boligområder og et nyt friareal for områdets beboere i øvrigt.
- Skabe plads til fornuftig håndtering af overfladevandet fra det nye boligområde.
Området kan som udgangspunkt ikke bebygges, men der sikres med planen mulighed for indpasning af et regnvandsbassin, en legeplads og stier.
Der udlægges med planen en stiforbindelse fra den eksisterende sti langs åen og igennem det nye naturområde, dels til boligområdet, dels videre mod øst parallelt med Sentvedvej. I forbindelse med den videre udvikling af det nye byområde øst for Ørbæk vil naturområdet også blive udvidet og forbinde eksisterende naturområder øst for planområdet - og i samme forbindelse skal stien videreføres mod vest.
Se stiudlægget på kortbilag 2 og et kort over den fremtidige udvikling af de grønne områder under afsnittet Forhold til anden planlægning - Kommuneplanen.
Figur 8: Inspirationsbilleder til naturområdet. Arealet planlægges udlagt til eng med vilde blomster og urter. Der vil være mulighed for afgræsning, hvis det er relevant. I dette tilfælde vil der kunne opføres læskure i mindre omfang i området, så vidt som det er påkrævet i forhold til dyreholdet.
Vejbetjening
Det nye boligområde skal betjenes med vejadgange fra Sentvedvej. Den primære vejadgang tænkes skabt umiddelbart øst for Sentvedvej 9 mens der også kan skabes vejadgang vest for Sentvedvej 11. Se kortet på bilag 2.
Der udlægges interne boligveje i en bredde af min. 5,5 m. Vejene udlægges som dobbeltsporede private fællesveje.
Vandhåndtering og grundvandsbeskyttelse
Lokalplanområdet vil blive spildevandskloakeret med afløb til Nyborg Forsynings ledningsnet. Regnvand fra tage håndteres lokalt med nedsivning for at bevare grundvandsdannelsen i området. Nedsivning vil ske direkte på terræn eller i faskiner enten lokalt på de enkelte matrikler eller i et fælles regnvandssystem afhængig af pladsforhold, og i hvilke områder jorden vurderes mest nedsivningsegnet. Et fælles regnvandssystem vil eksempelvis kunne blive etableret med grønne render/wadier langs veje og stier. Renderne vil blive etableret med indbyggede spærringer til tilbageholdelse og nedsivning af vand på de stejle skråninger således at nedsivningen sikres, erosion mindskes og renderne indgår med et rekreativt element i bebyggelsen.
Vand fra veje og parkeringsarealer afledes til Ørbæk Å efter rensning baseret på BAT, som for regnvand i dag er etablering af et vådt bassin med 200-250 m3 vand/red. ha. Bassinet etableres som en regnvandssø med en dybde på ca. 1 m langs det kommende stisystem. Bassinet søges udformet som et naturligt element i landskabet under de givne forudsætninger med et stærkt hældende terræn. Som supplement til det permanente vandspejl etableres et forsinkelsesvolumen, der sikrer at afledningen af regnvand lever op til myndighedskrav om drosling af vandføringen. Forsinkelsesvolumenet indbygges enten i regnvandssøens skråninger eller som opmagasinering langs med, under eller på vej- og parkeringsarealerne.
Lokalplanområdet ligger i et skrånende terræn med en nord-sydligt gående højderyg nær områdets afgrænsning ved Sentvedvej. Det betyder, at området ikke er berørt af væsentlige mængder skybrudsvand fra omgivelserne. Bebyggelsen placeres så skybrudsvand kan følge de naturlige strømningsveje i terrænet tilsvarende eksisterende forhold i området.
Figur 9: Inspirationsbilleder, der viser eksempler på regnvandsbassin (tv.) og rende til ledning af regnvand (th.).






